Продажа торговой площади

Алтайский край, Быстрый Исток, ул Ленина, д. 41

8 850 000 ₽

24 770 ₽ за м²

357 м²
Площадь
2/2
Этаж

Поделиться

Добавить в избранное

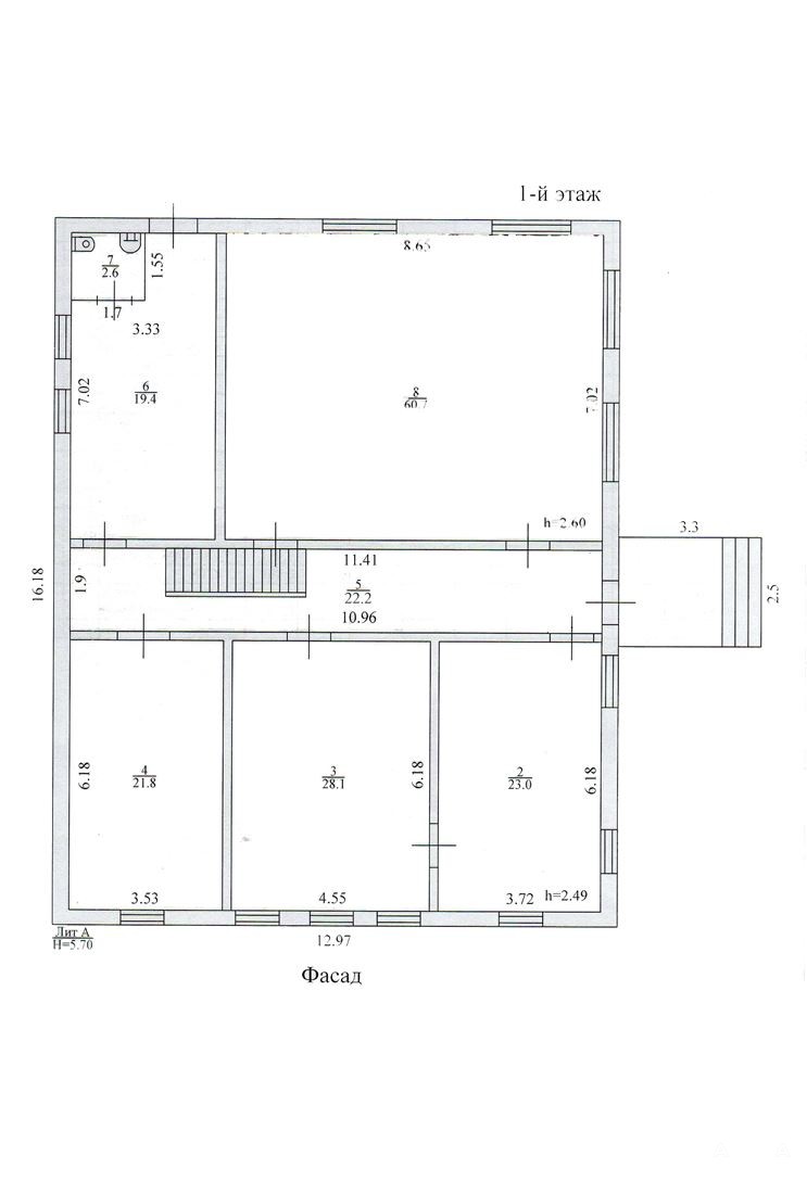
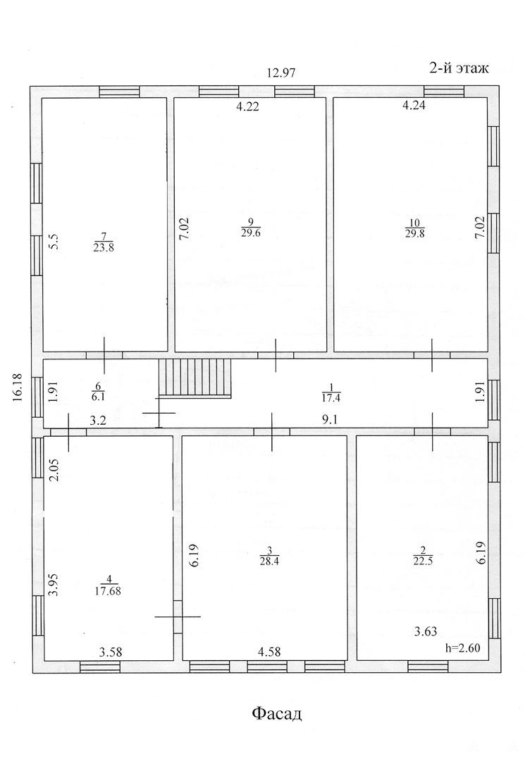
ID в ИМЛС: 11011809 Продам Магазин площадью 357, 3 м² и участок площадью 994 м² ( село Быстрый Исток ул Ленина 41). Дом: тип строения - отдельно стоящее, материал стен - деревянный, этаж - 1, 2, этажность - 2. Расположение в центре населённого пункта в непосредственном соседстве с районным судом, прокуратурой, редакцией, торговым центром МАРИЯ РА, магазинами бытовой техники и продуктовыми магазинами. Рядом администрация района. Двухэтажное обособленное здание, состоящее из нескольких сообщающихся помещений пригодно для торговли одеждой, для общепита, парикмахерских услуг и т.п. Расположено в центре Быстрого Истока на центральной площади. Одно из самых посещаемых мест района, известно в соседних районах и городе Белокуриха.

Дата обновления: 26 марта 2026